Faza III — Bloc c2

Disponibil

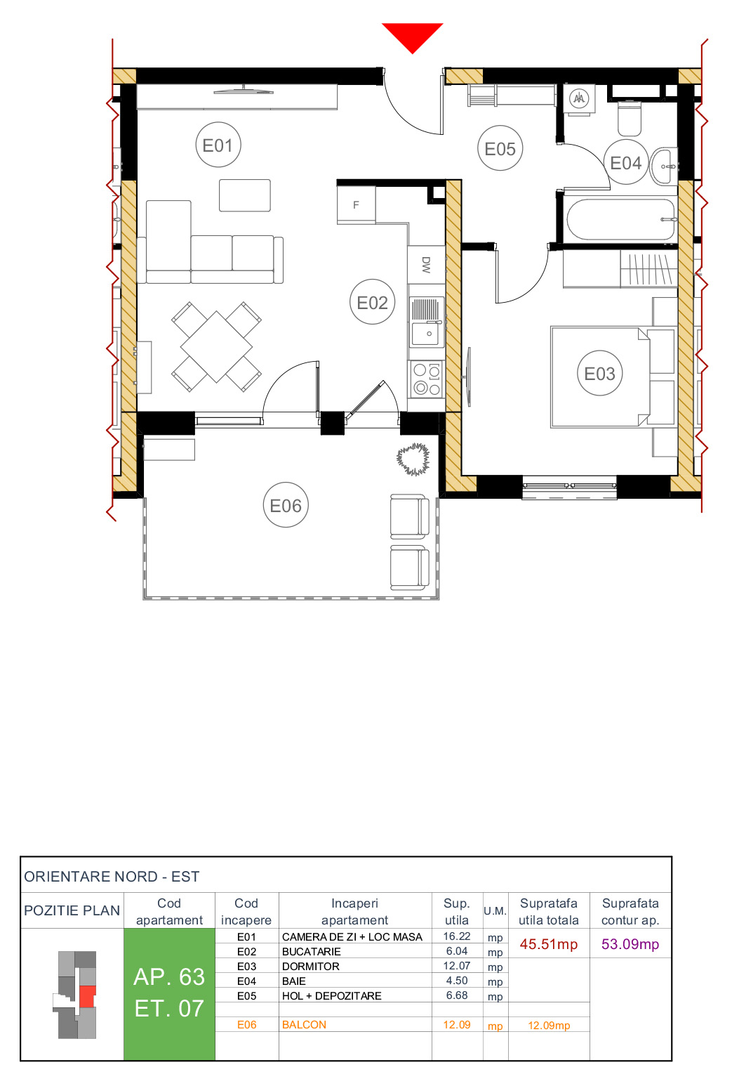
Apartament 63

Etaj 7 · 2 camere · 57.44 mp utili

Caracteristici

Faza Faza III
Bloc c2
Etaj 7
Camere 2 camere
Suprafață utilă 57.44 mp
Disponibilitate Disponibil
Preț