Faza III — Bloc c2

Disponibil

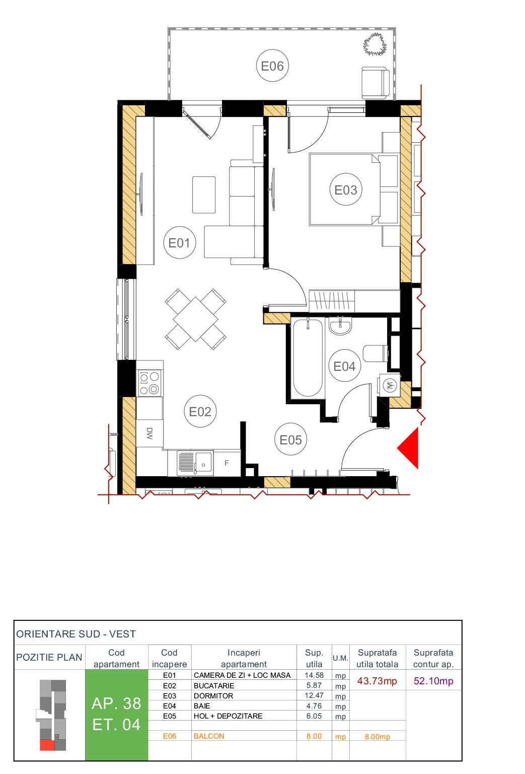
Apartament 38

Etaj 4 · 2 camere · 51.41 mp utili

Caracteristici

Faza Faza III
Bloc c2
Etaj 4
Camere 2 camere
Suprafață utilă 51.41 mp
Disponibilitate Disponibil
Preț